
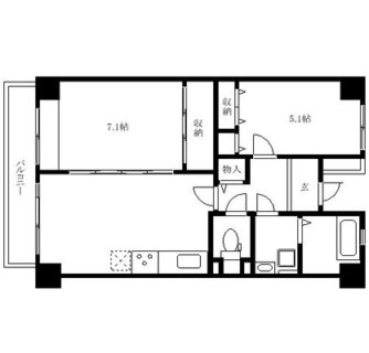
K32791の物件詳細
南北線で賃貸のルームシェア・ペット可・楽器可・新築・保証人なし・デザイナーズなど、賃貸マンション・アパートの物件検索。南北線の街紹介
≪総合仲介システムのご案内≫
弊社は、全国の不動産会社が個別に持つ空室情報を、業者間の流通システムを通して、
住みたい街の不動産屋さんは勿論、大手賃貸の管理会社様まで、
常時 数百万件以上の最新で正確な情報をご紹介しています。
★何度もお部屋探しの為、不動産会社へ来店する事が難しい方に、
おすすめの便利なシステムです。
検索結果で、希望のお部屋が見つからない方!ご安心ください。
お手数ですが、こちらの【賃貸物件お探しサービス】よりお気軽にお問合せください。
毎日、最新の物件情報を登録しておりますが、情報量が多く、日々変化する為、
全てを登録する事が出来ません!
★是非、貴方のこだわりをお聞かせください♪